In 2019, Kootenai County Land Co. (in partnership with Lakeside Companies) acquired 1,050 acres in the heart of Kootenai County. This land will be home to residences ranging from large, custom view sites to more quaint footprint homes offering affordability and urban style living.
Annexation efforts for Coeur Terre are now underway. This connected community embraces the land and the local roots. Coeur Terre is a community unlike anything else in the area. The planned site is rich with elements, as listed below, that anchor the memories people will share after visiting the site.

What are the goals of the Coeur Terre?
- Livability: Quality of life derived from the built and natural environment, and access to cultural and recreational opportunities.
- Walkability: Infrastructure which supports ease of access and safety for pedestrians.
- Variety: To offer a range of housing types and price points to meet the various needs and lifestyles of our community members.
- Conveniently Located: Conveniently located between Post Falls and Coeur d’Alene, Coeur Terre will provide valuable infill development, to keep city service costs low and to promote responsible and sustainable growth.
- Integrated Infrastructure: Streets, water, and sewer lines are constructed to meet area capacity needs now and in the future.
What types of amenities are included in Coeur Terre?
- Pedestrian and bicycle paths are integrated throughout the community, including a connection to the Prairie Trail which connects to the Centennial Trail.
- Parks and open space are incorporated within each section of development.
- The central corridors of Coeur Terre provide commercial opportunities.
How long will it take for Coeur Terre to be built?
- Development will occur in phases, gradually over time, as sections of Coeur Terre are built one at a time.
- The build out process is estimated to take 20- 30 years and will depend on market trends and community need.
Location

FAQs
Who is Kootenai Land Company (Kootenai County Land Co.)?
- A local land development company working to meet the needs of the Inland Northwest region, through creative solutions that are based in community-specific values.
- KC Land Co. is made up of members of the community. All KC Land Co. employees live in the Spokane and Coeur d’Alene area.
- KC Land Co. specializes in master planning communities that incorporate green space and recreational opportunities.
How was this project planned?
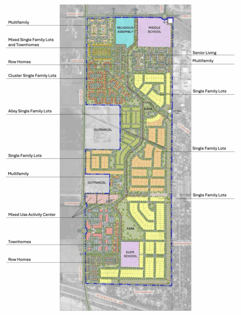
- Coeur Terre was designed as a Master Planned Community in partnership with an award-winning national planning firm. Master plans produce a cohesive organization of land uses – such as homes, parks, and open space – for an area. Without a master plan, areas can become haphazardly developed.
- The Coeur Terre Master Plan was created through an extensive planning effort. This included both a traffic study and wastewater analysis to understand current and future needs.
- The master plan separates development into phases to meet the community’s needs now and in the future.
What are the goals of the Coeur Terre?
- Livability: Quality of life derived from the built and natural environment, and access to cultural and recreational opportunities.
- Walkability: Infrastructure which supports ease of access and safety for pedestrians.
- Variety: To offer a range of housing types and price points to meet the various needs and lifestyles of our community members.
- Conveniently Located: Conveniently located between Post Falls and Coeur d’Alene, Coeur Terre will provide valuable infill development, to keep city service costs low and to promote responsible and sustainable growth.
- Integrated Infrastructure: Streets, water, and sewer lines are constructed to meet area capacity needs now and in the future.
What types of amenities are included in Coeur Terre?
- Pedestrian and bicycle paths are integrated throughout the community, including a connection to the Prairie Trail which connects to the Centennial Trail.
- Parks and open space are incorporated within each section of development.
- The central corridors of Coeur Terre provide commercial opportunities.
How long will it take for Coeur Terre to be built?
- Development will occur in phases, gradually over time, as sections of Coeur Terre are built one at a time.
- The build out process is estimated to take 20- 30 years and will depend on market trends and community need.
What types of homes will be built?
- A variety of homes will be constructed to serve a range of community needs, household types, lifestyles, and preferences. These will include single-family homes, townhomes, and apartments.
- The style and size of homes and lots will vary to accommodate a range of housing needs and price points.
- The total number of houses will be based on recommendations from the Cities.
What are the potential effects of Coeur Terre on housing prices?
- The Northern Idaho region is currently facing a high demand for housing. This means that home prices are competitive.
- Coeur Terre will introduce new housing units to meet the community demand, relieving some of the competition that is driving up regional housing prices.
- An increased stock of housing options will help stabilize housing prices regionally.
How will this project effect the local school systems?
- Positively! Coeur Terre will contain new school sites to meet the current needs of the local school systems.
- KLC is already working with the school districts to set aside land to meet future demand for local schools as well.
What about the impact on traffic?
- An extensive transportation study is nearing completion to determine traffic impacts and opportunities to mitigate any traffic impacts.
- KLC development is working with local transportation agencies to mitigate any potential traffic impacts up front. This includes working with the Idaho Transportation Department to dedicate property for the future Huetter Road Bypass and to design future streets in accordance with Huetter Road Corridor Plan.
- Both Cities will collect transportation impact fees which will go towards making necessary transportation improvements in the cities and near the project area.
What about water and utilities?
- A sewer study of the area is nearing completion. This study shows how wastewater needs for the Coeur Terre project can be met with improvements at the Cities’ wastewater treatment plants.
- KLC is working with local utility departments to ensure that mitigation improvements make sense with the surrounding area.
What factors could cause changes in the project’s design and master plan?
- This is a conceptual plan that can change over time.
- Changes to the master plan will be in response to changes in the market, real estate trends and the needs and preferences of the North Idaho community. This may mean changes in housing types, styles, and local road design.
- Regardless of any changes, the design will continue to meet the intent of the original master plan: to work with the cities, and to mitigate project impacts recommended by the traffic and sewer studies.
